草 岡 神 社 図 録

| 三代實録 | 日本書紀 | 棟礼と絵馬 | 神紋 | 神馬 | 狛犬と獅子 | 手水舎 | 大鳥居 | HOME |

勧請(創建)されたのは にさかのぼります。
 鎮座地
草岡神社(くさおかじんじゃ)の由緒      祭 事  遷宮  皇祖  大麻
                    
■旧 社 格 郷 社 (明治5年列)
■神 名 帳 延喜式内社
■鎮 座 地 富山県射水市堀岡古明神字宮地371番地
■神 社 名 草岡神社
■境 内 地 2,134m2(646坪)
■氏 子 数 344戸(古明神・新明町・草岡町・海竜町) 平成24年4月20日(萬雑) 現在
■神   紋 違い槌
■祭   神 大巳貴命(主祭神)・玉依姫命・事代主神
■宮   司 多田 省吾
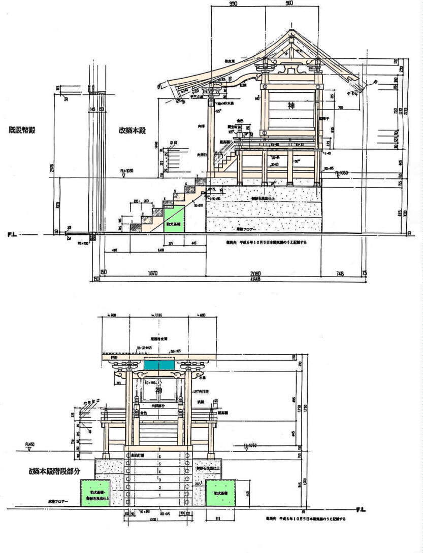
■正   殿 明治15年4月再築 現在   設計図を見る





平成6年に改修された正殿を包む大屋根(本殿)を支える桧の棟持柱が美しい。 設計者:菊民夫 撮影:菊昌治


草岡神社(くさおかじんじゃ)の由緒

 当神社の祭神は大己貴命(おおむなちのみこと)です。
御鎮座の年代は定かでないが、社伝には景行天皇40年(110)、日本武尊の東征の際、守護社として勧請されたと伝えられています。

 平安時代には清和天皇貞観9年(867)に正四位の位を授かると共に、寛治6年(1092)堀河天皇の勅願により玉依姫命を祀る下賀茂社 (京都)に寄進され社領として下村加茂神社が中心とする倉垣庄内に22の末社が勧請され氏神として合祀され祭政一致が行われた。正史 には承応2年(1653)の奥書「越中国式内等旧社記」に射水郡13座の一として草岡神社が「延喜式」神名帳に記されています。
 室町・戦国時代に入ると地方庄園が崩壊し神保長職(1547)の支配下に置かれた。 江戸期に入り郷村制が確立し、古明神村加茂社は”加茂 社”とも”草岡神社”とも称された。「文政元年(1818) 古明神村の村鑑帳」には、「家数52軒 三社 草岡・加茂・恵比須」とあり神社1カ所 に草岡社と並んで二つの社が併置されています。境外末社の恵比須社の祭神、事代主神も大正12年に合祀されました。
 明治5年に郷社と格付けされ延喜式内社に列せられています。

 江戸時代末期の天保11年(1840)現在地に遷り、何度かの立替の後、昭和15年正月大雪に見舞われ遂につぶれたため、同年9月3日に その時代のはやりとして神明造として再建された。その後、大改修は昭和48年、平成6年に行っている。 草岡神社の祭神は「大巳貴命」(おおむなちのみこと)「玉依姫命」(たまよりひめのみこと )「事代主神」(ことしろぬしのかみ)の3神が合祀されています。草岡神社は幾たびかの風水害 で社地・社伝・旧記を亡失していますが、今も由緒ある神社として、信仰が厚い。


 三神が祀られている"正殿"は、明治15年4月、棟梁 高岡の大工町渡辺直作により再築された。その間、御神体は氏子惣代織田弥十郎方(古明神村252番地)に安置された。神主は広上の多田定信である。造りは1間社流れ造、1間2面平入り(間面記法)の柿葺[こけらぶき]。比較的簡素な作りではあるが、組物[くみもの]、懸魚[けんぎょう]、雲斗[くもと]、木鼻[きばな]、虹梁[こうりょう]など極めて雄健で、素朴な感じの建物である。桁行0.96m、梁間1.13m、軒高正面2.015m。
 正面に掲げてある"神社額"は、この宮地に遷宮(移転新築)された天保11年(1840)よりも51年遡ります。江戸中期、寛政3年(1791)とある。又、正殿の両脇の"狛犬"には慶応3年(1867)の奉納の文字が見える。

この正殿の創建年度は不明であるが、神社額の裏に寛政3年(1791)と明記されている。
神社額に寛政3年(1791)と記。


Copyright© Kiku tamio Office 2007